

![]() |



EJE*-S/C 系列防爆外殼是分為防爆接線盒和防爆控制站,由不銹鋼或碳鋼制造而成,它們可以被安裝在所有的工業(yè)廠房,特別是那些帶有爆炸或火災的可燃氣體或粉塵環(huán)境,可用在防爆 1, 2, 21 和 22 區(qū)。
這些防爆外殼主要使用功能:
模擬或數字電纜布線。
信號和/或與設備相關的控制和監(jiān)視。
電機、風機、水泵等設備的控制和啟停。
物理讀數,如流量、水位、壓力、溫度、電流等。
咨詢熱線:
0523-88317000 88318288


根據終端的類型和防爆組件使用。




EJE*-S/C 的外殼也可以制造到中等大小。這假定任何給定尺寸不大于最大外殼的各自尺寸,或不小于最小外殼的各自尺寸。適用于中等大小的接線盒
的耗散功率是下一個最小外殼的耗散功率。
終端和部件可按指定的組合使用,但需計算最大耗散功率和認證條件。每個外殼的最大耗散功率都在上面詳述。
外殼可以鉆孔并用最大尺寸和最大孔數來填充。最大數量為指定的與單獨認證的電纜或堵頭的使用制造商的文件。每個外殼設有接地端子或接地點內
部認證。
請參考下面的表格排序。如果你需要更多的信息,請聯(lián)系我們的銷售代表協(xié)助。
不影響防爆的數字或字母
這些外殼主要用于電纜終端接頭的功能,具有引出或更換區(qū)段電纜的端子,用于連接長電纜到下部端子的電動機和/或終端用戶的端子帶。
終端的內部布局可以按照不同的配置進行,根據客戶的特殊要求,但始終在合格證的范圍內,終端可以與標準的不同位置安裝。
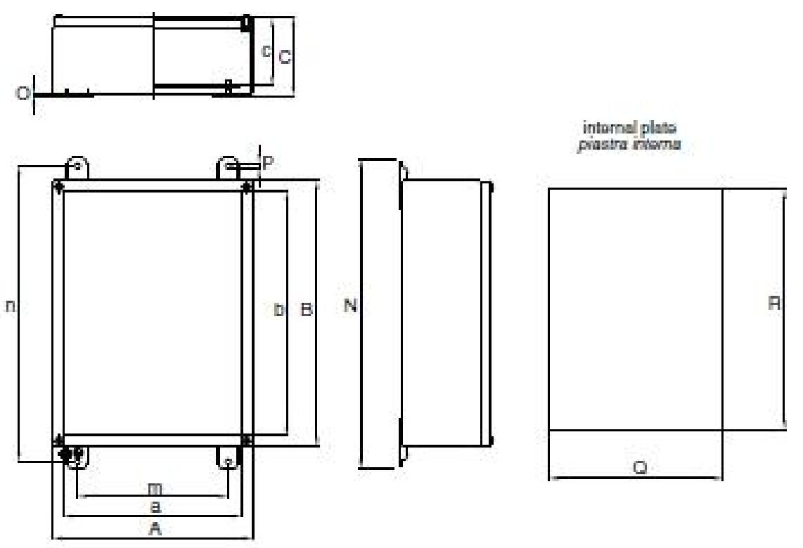
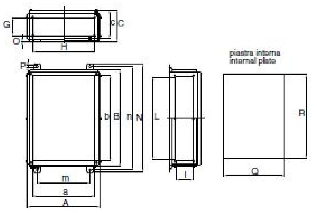
要使用的外殼尺寸是由我們的技術辦公室根據客戶所表示的幾個參數來完成的:
? 電纜的數量和大小
? 條目的數量和大小
? 特別的需要對于布線和工廠內的外殼的位置
? 溫度組別
? 設計溫度
如果外殼是提供完整的電纜腺體,我們會注意在尺寸方面根據電纜的數量和大小安裝。
端子安裝在安裝導軌上,直接固定在機箱底座或其安裝板的專用支架上。
外殼內部的端子的配置可以采用不同的配置:
?直線
?對角
?更多的行
根據客戶的要求,在證書使用的限制方面,對于機箱類型的最大端子、最大孔、最小距離和耗散功率,終端可以與所描述的不同位置安裝。
終端 50... 300 mm2
額定工作電流最大至 630 A
根據外殼版本和尺寸

這些外殼主要用于:
?電機、風機、水泵等設備的控制和啟停。
?物理讀數,如流量、水位、壓力、溫度、電流、電壓,頻率,速度控制等。
附件中的組件的分配可以根據特定客戶的要求在不同的配置下進行,并且始終遵守認證的限制。
蓋子上的設備符合這些外殼的使用,并由相關的組件證書、品牌功能和選定的型號組成。
不銹鋼制成的配電裝置用于潛在爆炸性環(huán)境中的照明、加熱、馬達和插座電路。包含具有隔爆外殼組件的分布。這些隔爆元件,如微型斷路器、熔斷
器等,提供了熱磁保護,可以單獨安裝在 DIN 導軌。
配電系統(tǒng)在各種尺寸的不銹鋼外殼可用。在標準的墻壁安裝或獨立的框架中,外殼可以組合成大型的配電系統(tǒng)。微型斷路器,漏電開關和其他組件可
以通過鎖定驅動,集成在外殼蓋上,無需打開外殼。
我們生產的配電柜根據客戶要求和基礎的項目數據:
? 最低限度的保護類型
? 適當時,設備必須適合的危險氣氛的詳細情況
? 單線接線圖
? 控制系統(tǒng)示意圖
? 操作、輔助和控制電壓
? 頻率
? 連接負載的額定功率和電流額定值
? 所需元件的數量和類型,如接觸器、開關、斷路器、熔斷器、熱繼電器、儀表、端子等
? 電纜數量和類型
? 導體的數量和尺寸
? 數量和位置的條目(從頂部,底部,側、中心)
? 環(huán)境條件
? 安裝方法
|
填寫您的需求,我們將會在最短的時間內與您取得聯(lián)系
30分鐘內給予技術咨詢答復 | 24小時內提供明確方案設計 | 24/72小時內完成國內/外工程師派遣
|

![]() |
![]() Copyright (C) 2000-2018 All Rights Reserved. 蘇ICP備12036863號 德威電氣江蘇有限公司版權所有
|
![]() |